Fishplates

Overview

Light rail fishplates are primarily used for connecting and securing light rail rails, and are compatible with various specifications of light rail rails such as 9kg/m, 12kg/m, 15kg/m, 22kg/m, and 30kg/m. The products strictly comply with the implementation standard GBT 11265-1989.
Heavy rail fishplates are mainly used for connecting and securing heavy rails, and are suitable for different types of heavy rails such as 38kg/m, 43kg/m, 50kg/m, and 60kg/m. Through precise design of dimensions, weight, and mechanical parameters, they ensure the stability and mechanical performance of rail connections.

Smelting & Manufacturing

Light-rail steel may be produced in converter, open-hearth or electric furnaces; delivery condition is hot-rolled.

Heavy fishplates are commonly produced from killed steel (EAF/BOF/other) and, depending on requirements, delivered quenched & tempered (high-temperature quench + self-tempering or tempering) to meet mechanical properties.

Bolt holes are often punched in the hot state; cutting to length may be by hot or cold methods.

fishplates for sale

Surface Quality & Dimensional Tolerances

End faces: no delamination or shrinkage cavities.

Surface: no cracks, folds, bubbles, scabs; local scratches/pits ≤ 0.5 mm depth permitted.

Ends and hole edges to be square to length and burrs removed.

Dimensional tolerances:

Bolt hole diameter: punch direction ±0.5 mm; die direction +2.0/−0.5 mm.

Thickness: +1.0/−0.5 mm; working face height ±0.5 mm.

Fishplate length: ±3.5 mm; other negotiated dims ±0.5 mm (examples).

Technical Specifications

Light Mining Rail

Light-rail joint bars: for nominal rail weights 9, 12, 15, 22, 30 kg/m.

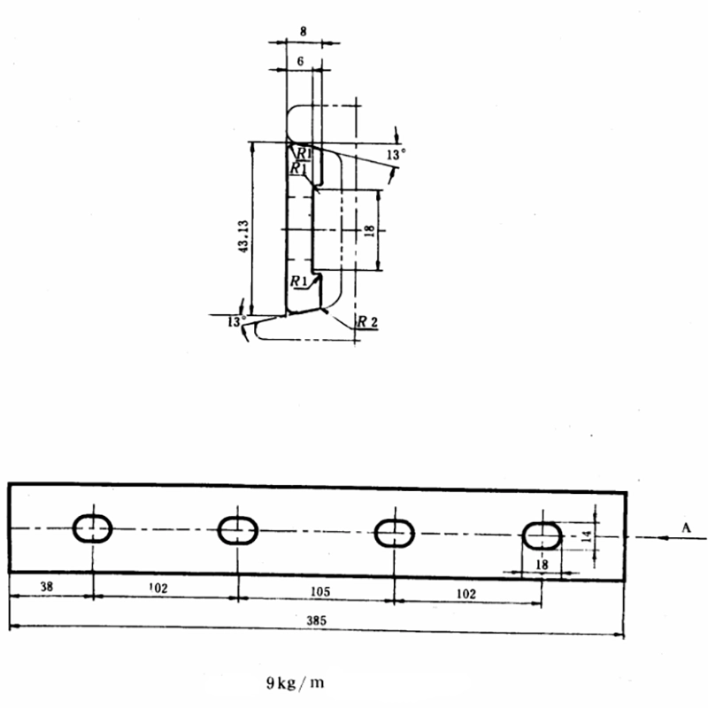
9kg rail fish plates drawing
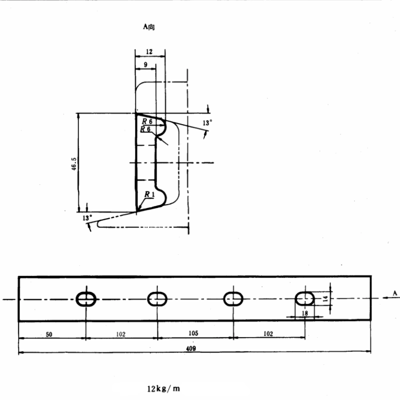
12kg rail fish plates drawing
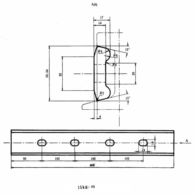
15kg rail fish plates drawing
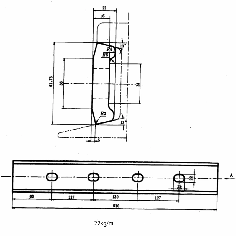
22kg rail fish plates drawing
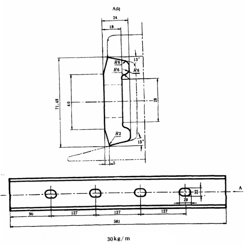
30kg fish plates drawing
Rail spec (kg/m)Theoretical weight (kg/piece)
90.81
121.39
152.2
223.8
305.54
Rail spec (kg/m)Tensile strength (MPa)Elongation (%)
<15375-460≥26
>15410-510≥24

Heavy Mining Rail

Heavy fishplates: for heavy rails such as 38, 43, 50 and 60 kg/m.

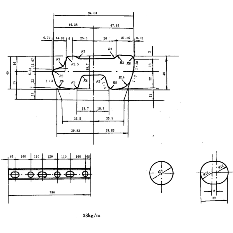
38kg fish plates drawing
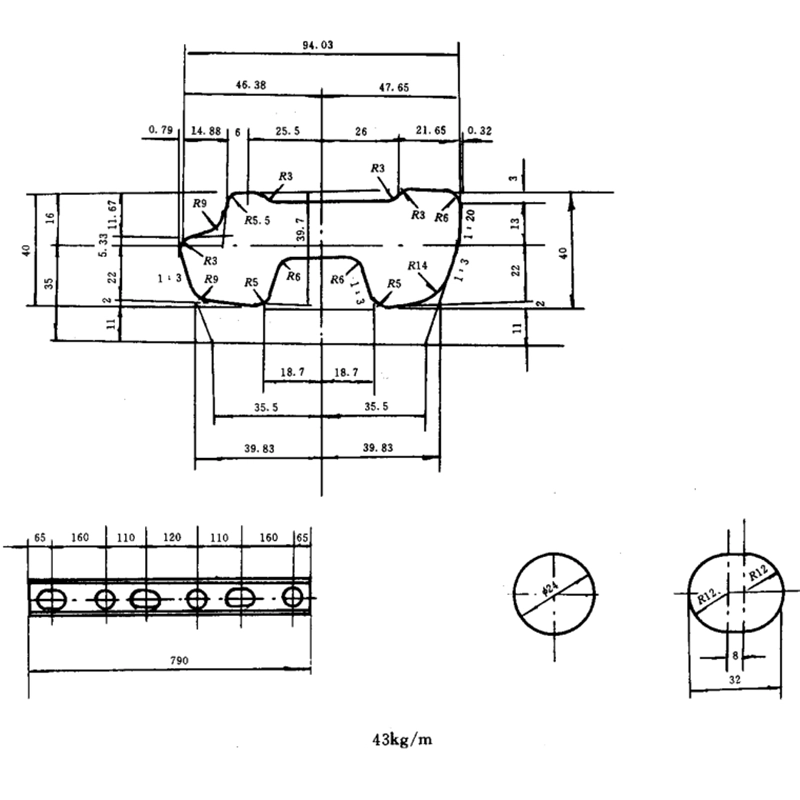
43kg fish plates drawing
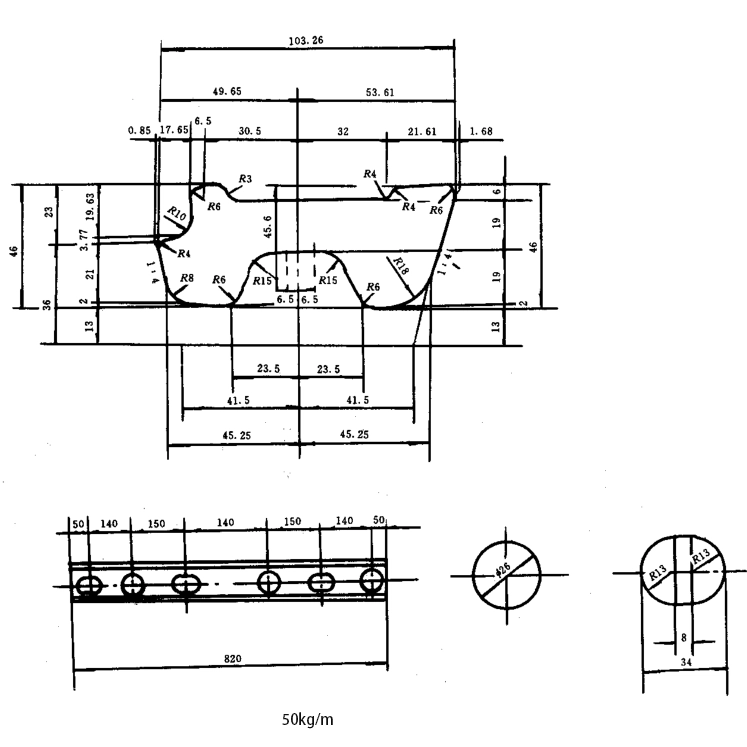
50kg fish plates drawing
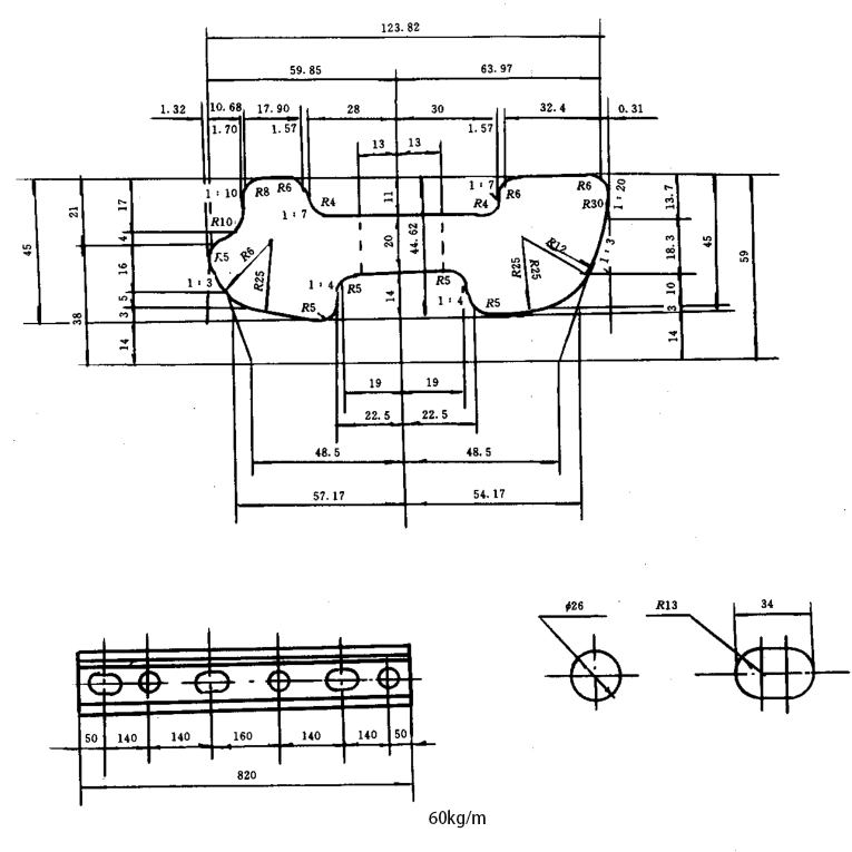
60kg fish plates drawing
Rail spec (kg/m)Fishplates (length/mm)Cross-Sectional areaEach meter’s weightFull WeightDeduct hole
3879026.0120.3716.0915.57
4379026.0120.3716.0915.57
5082030.0523.5319.2918.72
6082037.2623.1723.9223.32

FAQs

Q: What is a fishplate / joint bar?

A:A fishplate (joint bar) connects two rail ends to ensure geometric and mechanical continuity at the joint. It is used with bolts, shims and insulation components as required.

A: Common light-rail: 9, 12, 15, 22, 30 kg/m. Typical heavy rails: 38, 43, 50, 60 kg/m. Other sizes available on request.

A: Light-rail uses Q235-A or Q255-A per GB 700; heavy fishplates commonly use grades such as YW52. Mill Test Certificates (MTCs) and factory test reports are provided with shipments.

滚动至顶部